产品总汇Products
产品列表

气动法兰闸阀

阀体材质:WCB、304、316
公称通径:DN50-DN600mm
压力范围:1.0、1.6、2.5Mpa
流体温度:-20℃-400℃
连接方式:对夹、法兰
适用介质:醋酸类 硝酸类
行业应用:应用于 医疗器械、太阳能、清洗设备、食品机械、燃烧器、焊接切割、消防安全、生物制药、机械制造等行业

咨询热线:0577-27863708
此产品相关资料下载
  • 产品描述

概述:

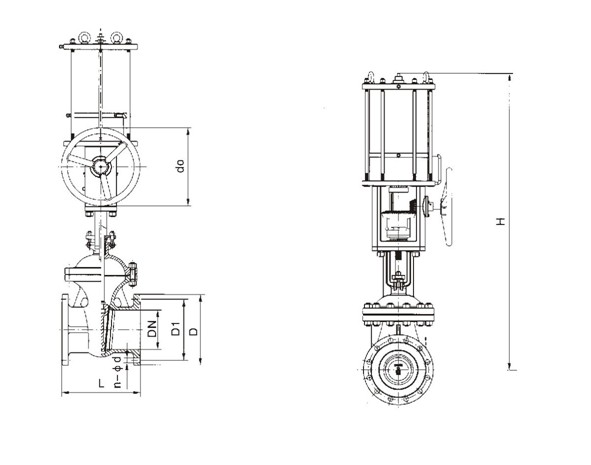
气动法兰闸阀具有性能可靠、操作切换和维修方便等特点。已被石油、化工、海运等部门广泛用于对各类介质控制。气动法兰闸阀配有气动执行机构和手动机构,闸阀执行器采用双层气缸结构,它与单气缸式气动闸阀相比,提升力增大了一倍,解决了单气缸式气动闸阀的某些阀板在阀体内楔死而打不开的弊病,具备缓冲机构,能有效地减轻关闭阀门时由于活塞下行冲击而造成的阀板密封面和阀体密封面的磨损,同时也能避免闸板卡死的现象。气动法兰闸阀可以配用电的或气的回讯器,用以发送阀门开关状态信息。可以实现远距离控制,集中控制和自动控制。气动法兰闸阀(带顶装手轮)气动法兰闸阀(带侧装手轮)

详细参数

技术规范

注:系列球阀结构长度及连接法兰尺寸可根据用户要求设计制造

主要零件材质表

注:主要零部件及密封圈的材质亦可根据实际工况条件或用户特殊要求设计选用.

主要外形及连接法兰尺寸

返回列表
在线客服

在线客服