产品总汇Products
产品列表
当前位置:首页 > > 产品总汇 > 气动阀 > 气动球阀

气动卡箍式球阀

阀体材质:WCB、304、316
公称通径:DN20-102mm
压力范围:0~1.6Mpa
流体温度:-20℃-150℃
功能选项:防爆
适用介质:水
行业应用:应用于 医疗器械、太阳能、清洗设备、食品机械、燃烧器、焊接切割、消防安全、生物制药、机械制造等行业

咨询热线:0577-27863708
此产品相关资料下载
  • 产品描述

概述:

卫生级气动球阀皆经过精密的检验流程和严格的品质管理,流道经过精密抛光和除菌处理,采用了全包的F4密封,没有死角且容易清洗。气动动卫生球阀阀体采用不锈钢精制而成,流道内壁0.5um电子抛光,保持流体畅通无阻。

详细参数

技术规范

注:系列球阀结构长度及连接法兰尺寸可根据用户要求设计制造

主要零件材质表

注:主要零部件及密封圈的材质亦可根据实际工况条件或用户特殊要求设计选用.

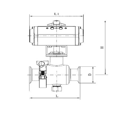
主要外形及连接法兰尺寸

产品维护使用及安装说明
1、本阀门安装前,应将管道及阀门清洗干净,密封面处不得有划伤痕和污物,以免产生内漏或减少产品的使用寿命。
2、安装时须仔细核对卡箍连接型号是否一致,卡箍与该阀连接处应安装专用密封圈,使该阀与管道连接密封可靠。 水平管道、垂直管道均可安装。
3、该阀安装完成通入压力介质时,转动手柄90°检查内外密封,如无渗漏现象,即可投入正常使用。
4、使用过程中如发现蝶阀关闭时,内部仍有渗漏现象,须更换密封圈,重新正确安装后再投入使用。
5、该蝶阀一般用于接通及断开介质,也可以用于调节流量,但不要将该阀安装于要求严格调节介质流量大小的系统中。
产品制造、检验标准
制造标准:GB/T12237-1989检验标准:GB/T13927-1992 JB/T9092-1999
配套附件
①电磁阀(DC24V、AC220V)(防爆、普通);
②空气减压过滤器(三联件);
③限位开关(防爆、普通);
④手动操作器;
⑤电气定位器(4-20MA)气动阀门定位器(0.15-0.8)Mpa;

在线客服

在线客服