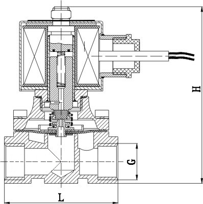
公称通径:DN10~50mm 连接方式:内螺纹 工作原理:分布直动膜片式 阀体材质:黄铜、不锈钢 密封材质:丁晴橡胶NBR.氟像胶FKM.其他材质请咨询 适用介质:液体、气体等 介质温度:W1 -20℃~80℃ W2 -20℃~130℃